堺市東区西野288-3新築戸建て1号地 大阪府堺市東区西野288-3|3,880万円の新築戸建|株式会社ライズ

株式会社ライズ
電話のアイコン

06-6232-8758

(受付時間:10時〜20時 / 土曜日・日曜日定休)

TOPページ
物件検索
新築戸建
堺市東区
南海高野線
堺市東区西野288-3新築戸建て1号地

新築戸建

堺市東区西野288-3新築戸建て1号地

お気に入り
価格 3,880万円
利回り - 満室時想定
年収/月収
- / -
所在地 大阪府堺市東区西野288-3 この地域周辺の物件を見る 築年月 2026年2月築
交通
南海高野線 北野田 徒歩12分
建ぺい率 60 % 容積率 200 %
ここがおすすめ

-

お問い合わせ、資料請求、見学のお申し込みはこちらから

株式会社ライズ
06-6232-8758
「ホームページを見た」とお伝え下さい。

お問い合わせ番号をお伝えください
RHS-wnew001

内見予約
お問合せ

セールスポイント

特徴
    セールスコメント 【物件の特徴】
    *「ママが喜ぶ家づくり」がコンセプト
      ゆとりある水まわり・豊富な収納力
      リビング階段で家族が顔を合わせるプランニング
    *長期優良住宅
    *耐震等級3<最高等級>
    *一次消費エネルギー等級6<ZEH 水準>
    *断熱等級5<ZEH 水準>
    *マリンホーム設計・施工
    *フラット35S(金利 A プラン)
    利用される場合の適合証明書は別途費用必要です。(99,000 円税込)

    【仕様のアピールポイント】
    *キッチンは IH ヒーター、食器洗い乾燥機(深型)
     タッチレス水栓、背面にカップボード付、折り下げ天井
    *ユニットバスは、ほっカラリ床、魔法びん浴槽
    *サッシは樹脂サッシ採用<LOW-E ガラス+アルゴンガス+樹脂フレーム>
    *洗面化粧台はタッチレス水栓、サイド収納付 / 室内天井に物干しフック設置
    *洗面室に家庭用ガス乾燥機「乾太くん」標準装備
    *玄関ドアは IC タグキーつき
    *ダウンライトは LED 照明を標準設置
    *外壁は汚れに強いマイクロガード仕様
    *床下基礎内には床炭敷設

    設備・仕様など詳細はお問い合わせ下さい!

    収益不動産を中心に扱う専門会社です。

    ◎【独自の仕入れルート】が当社の強みです。
    独自の選定基準に基づき物件選定を行い、中長期運用や出口戦略を含むトータルでの運用提案を致します。

    ◎【資金調達のご相談賜ります】
    不動産投資に強みのある銀行の探し方等資金計画をご提案

    ◎賃貸管理もワンストップでお任せ下さい。
    経験豊富な専任スタッフがオーナー業務を代行致します。

    ◎来店&商談ブース有り 空き時間を活用してのオンライン相談も随時受け承ります。

    ◎WEB電子契約により安全で効率的な取引を提供致します。

    ◎まずはお気軽にご相談下さい。
    【便利なLINE登録はこちら】 【無料会員登録はこちら】

    物件概要

    階数 地上2階建 用途地域 第一種中高層住居専用地域
    構造 木造
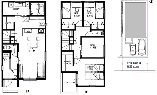
    間取り 4LDK
    土地面積 101.6m² (指定なし) (30.73坪) 建物面積 101.44m2
    専有面積帯
    テラス面積 - 専用庭面積 -
    現況 R8年2月完成予定 引渡し 相談
    土地権利 所有権 採光面 -
    駐車場 駐輪場 -
    法令上の制限 - 都市計画 -
    地目 宅地 地勢
    接道状況 接道: 南 公道 道路幅: 4m 総戸数 -
    私道負担面積 - セットバック -
    建築確認番号 第BVJ−ENG25−10−1149号
    取引態様 一般媒介
    情報更新日 2026年01月15日 次回更新日 2026年01月29日
    情報更新日:2026年01月15日 次回更新予定日:2026年01月29日
    ※各種情報と差異がある場合は現況優先となります
    • こちらの物件を見たお客様はこんな物件もチェックしています。
    • お気に入り物件

    同じ価格帯の物件はこちら

    この物件以上の利回り物件はこちら

    株式会社ライズ
    06-6232-8758
    「ホームページを見た」とお伝え下さい。

    お問い合わせ番号をお伝えください
    RHS-wnew001

    内見予約
    お問合せ

    お問い合わせ

    1. 1
      内容入力
    2. 2
      内容確認
    3. 3
      完了
    お問合せ内容必須
    【備考欄】
    詳細な見学ご希望時間、ご質問、ご希望条件などがございましたらお聞かせ下さい。
    (2000文字以内)
    お名前必須
    メールアドレス必須
    ※ご記入いただいたメールアドレス宛てに、お問合せ内容の確認メールをお送りいたします。
    ※Yahoo!メールなどのフリーメールをご利用の場合、迷惑メールフォルダに入る場合があります。
     迷惑メールのフォルダ・設定等をご確認下さい。
    電話番号必須
    FAX(任意)
    ※ご入力いただいたお客さまの個人情報は、「個人情報の取扱いについて」に基づき適正に取り扱います。必ずお読みになり、同意の上お問い合わせください。

    お気軽にお問い合わせください

    06-6232-8758
    物件番号 RHS-wnew001
    ※「ホームページを見た」
    とお伝え下さい。

    お役立ち機能

    この物件を
    携帯で確認!

    物件探しに役立つメリットが沢山 会員登録をする
    • 売却を依頼する
    • LINEを登録する

    物件検索

    SEARCH

    ワンクリック検索

    詳細検索 もっと詳しく検索したい方はこちら
    • 販売実績一覧を見る

    REAL ESTATE SALE

    不動産売却に
    ついて

    売却もライズにお任せ。

    販売実績多数の信頼と実績の頼れるパートナーが豊富な経験と専門知識で安心サポート。

    当社について

    COMPANY

    ライズの店舗内観写真

    株式会社ライズ

    • 所在地

      〒 540-0012
      大阪市中央区谷町1丁目2番7号
      大手前ビル8階

    • TEL / FAX

      06-6232-8758 / 06-6232-8759

    • 営業時間

      毎週月曜日〜金曜日 / 10時〜20時

    PAGE TOP

    Copyright ©raise-corp.com All rights reserved.